HLCF Hydraulischer Hebelspanner - Hydraulikzylinder
Spannzylinder mit Hebelmechanik - einfach oder doppelt wirkend :
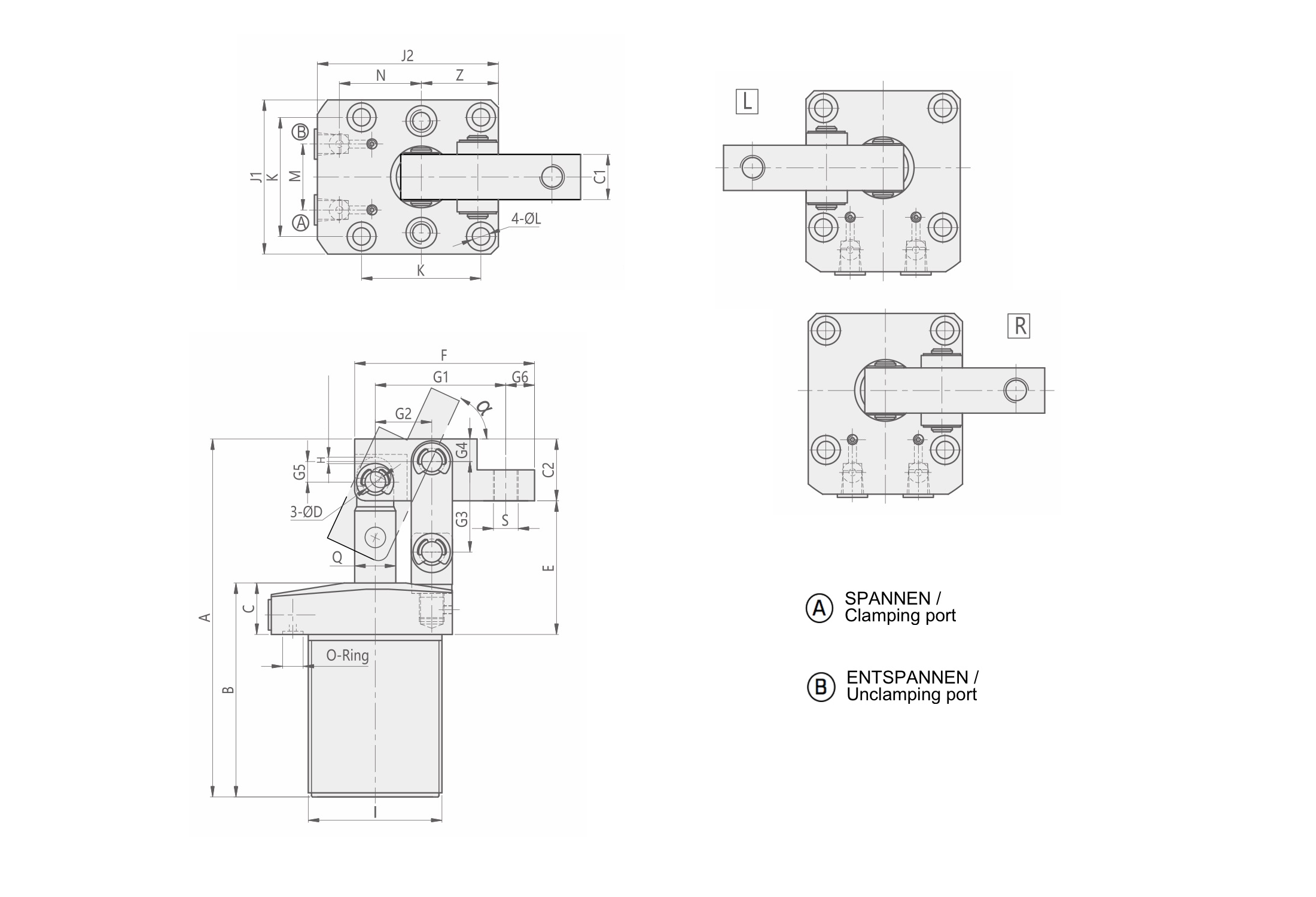
- Gewindegehäuse mit Flansch an der Oberseite
- Kompakter Spannzylinder, ausgelegt für hohe Spannkräfte bei geringem Versorgungsdruck
- robust, zuverlässig und sehr langlebig
- Material Zylindergehäuse und Spanneisen : C45 Stahl
- Material Kolben/Kolbenstange : Vergütungsstahl, verchromt und gehärtet/vergütet
- Hydraulische Druckversorgung wahlweise über stirnseitige PT1/8-Anschlüsse oder planseitige Kanäle mit O-Ringabdichtungen
- Spannkräfte von 1,6kN bis 16,7kN (5 Kolbengrößen)
- Auslieferung komplett mit Spannarm
- Min. Betriebsdruck 20bar
- Max. Betriebsdruck 70bar
- Betriebstemperatur : -10 ~ +70°C
- optional einfach oder doppelt wirkend
- Auf Anfrage sind Sonderausführungen lieferbar
➝ CAD-Daten und Preise auf Anfrage !
Beispiel Bestellnummer:
HLCF - D 40 C R A W
Baureihe – Wirkart – Zylinder Innendurchmesser – Geschwindigkeitsregelung – Montagerichtung – Gehäuse – Zubehör
| ① | BAUREIHE | HLCF | |
| ② | Wirkart Hydraulikzylinder | D: doppelt wirkend S: einfach wirkend |
|
| ③ | Hydraulikzylinder Innendurchmesser |
25 :ø25 mm
32 :ø32 mm 40 :ø40 mm 50 :ø50 mm
63 :ø63 mm |
|
| ④ | Geschwindigkeitsregelung | Optionale Geschwindigkeitsregelung | |
| ⑤ | Montagerichtung des Spanneisens |
Leer: Standard vorne R: Rechts L: Links |
|
| ⑥ | Gehäuse gegossen | (optional) | |
| ⑦ | optionales Schweissschutz-Zubehör | modifizierte Abmasse bei dieser Option ! |
| Modell-Nr. | Spannkraft bei 70 bar | Spannhub | Gesamthub | Ölbedarf Spannen | Ölbedarf Entspannen | eff. Kolbenfläche Spannen | eff. Kolbenfläche Entspannen |
|---|---|---|---|---|---|---|---|
| [kN] | [mm] | [mm] | [cm³] | [cm³] | [cm²] | [cm²] | |
| HLCF-S-25 | 1,58 | 22 | 24 | - | 11,78 | - | 4,91 |
| HLCF-D-25 | 2,68 | 22 | 24 | 8,09 | 11,78 | 3,37 | 4,91 |
| HLCF-S-32 | 2,43 | 28 | 31 | - | 24,92 | - | 8,04 |
| HLCF-D-32 | 4,12 | 28 | 31 | 18,69 | 24,92 | 6,03 | 8,04 |
| HLCF-S-40 | 3,88 | 30 | 33 | - | 41,45 | - | 12,56 |
| HLCF-D-40 | 6,59 | 30 | 33 | 34,82 | 41,45 | 10,55 | 12,56 |
| HLCF-S-50 | 6,18 | 30 | 33 | - | 64,78 | - | 19,63 |
| HLCF-D-50 | 10,49 | 30 | 33 | 54,42 | 64,78 | 16,49 | 19,63 |
| HLCF-S-63 | 9,80 | 30 | 33 | - | 102,83 | - | 31,16 |
| HLCF-D-63 | 16,62 | 30 | 33 | 92,47 | 102,83 | 28,02 | 31,16 |

| Modell | A | B | C | C1 | C2 | D | E | F | G1 | G2 | G3 | G4 | G5 | G6 | H | I | J1 | J2 | K | L | Rohrleitungs- anschluss | M | N | Z | S | α | O-Ring | Q |
|---|---|---|---|---|---|---|---|---|---|---|---|---|---|---|---|---|---|---|---|---|---|---|---|---|---|---|---|---|
| HLCF-S-25 HLCF-D-25 |
128,5 | 86,5 | 25 | 16 | 17 | Φ6 | 50 | 55 | 41 | 18 | 26 | 6,5 | 4,5 | 7 | 2 | M40x1.5 | 50 | 60 | 37 | Φ5.5-Φ9x5.5D | 2-PT1/8 | 23 | 26 | 25 | M6 | 75° | P7 | ø14 |
| HLCF-S-32 HLCF-D-32 |
149 | 97 | 25 | 18 | 20 | Φ6 | 57 | 68 | 52 | 22 | 33 | 8 | 5 | 8 | 3 | M50x1.5 | 60 | 70 | 45 | Φ6.5-Φ11x6.5D | 2-PT1/8 | 23 | 30,5 | 30 | M8 | 75° | P7 | ø16 |
| HLCF-S-40 HLCF-D-40 |
157 | 97 | 25 | 20 | 25 | Φ8 | 60 | 75 | 56 | 24 | 33 | 13 | 4 | 10 | 3 | M55x1.5 | 65 | 75 | 50 | Φ6.5-Φ11x6.5D | 2-PT1/8 | 26 | 33 | 32,5 | M8 | 75° | P7 | ø16 |
| HLCF-S-50 HLCF-D-50 |
174 | 104 | 25 | 22 | 30 | Φ10 | 65 | 87,5 | 63,5 | 27,5 | 44 | 11 | 10 | 14 | 3 | M65x1.5 | 75 | 88 | 58 | Φ8.5-Φ14x9D | 2-PT1/8 | 32 | 38 | 37,5 | M12 | 65° | P7 | ø20 |
| HLCF-S-63 HLCF-D-63 |
179 | 105 | 25 | 22 | 30 | Φ10 | 69 | 98 | 74 | 32 | 48 | 11 | 10 | 14 | 3 | M80x1.5 | 90 | 108 | 70 | Φ8.5-Φ14x9D | 2-PT1/8 | 35 | 48 | 45 | M12 | 60° | P7 | ø20 |
